Nieuw in verkoop: Titus Brandsmastraat 21, 5111 VD Baarle-Nassau
Nieuw in verkoop: Titus Brandsmastraat 21, 5111 VD Baarle-Nassau
Nieuw in verkoop: Titus Brandsmastraat 21, 5111 VD Baarle-Nassau
Nieuw in verkoop E

Titus Brandsmastraat 21, 5111 VD Baarle-Nassau

€ 315.000,- k.k.

Beschrijving Titus Brandsmastraat 21

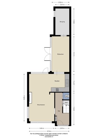
WONINGZOEKERS OPGELET! Ben jij op zoek naar een huis met mogelijkheden en een grote tuin, gelegen op loopafstand van de dorpskern van Baarle-Nassau? Lees dan verder!

LIGGING EN OMGEVING
Deze hoekwoning is gelegen op loopafstand van de dorpskern van Baarle-Nassau. In dit altijd gezellige dorp...

Kenmerken

Type object Woonhuis, eengezinswoning, hoekwoning
Bouwperiode 1960
Status Nieuw in verkoop
Aangeboden sinds Zaterdag 18 april 2026

Titus Brandsmastraat 21 bekijken?

Wij plannen graag een bezichtiging met je in. Tijdens de bezichtiging vertelt een makelaar alles wat je wilt weten.

Sluiten

Recent bekeken