Beschrijving
WONINGZOEKERS OPGELET! Ben jij op zoek naar een huis met mogelijkheden en een grote tuin, gelegen op loopafstand van de dorpskern van Baarle-Nassau? Lees dan verder!
LIGGING EN OMGEVING
Deze hoekwoning is gelegen op loopafstand van de dorpskern van Baarle-Nassau. In dit altijd gezellige dorp is een grote diversiteit aan voorzieningen aanwezig. Denk hierbij aan speciaalzaken zoals een bakker en een slager, maar ook een aantal grote supermarkten, detailhandelszaken en restaurants. Ook is er één keer per week een leuke markt op het plein achter het gemeentehuis. In Baarle-Nassau zijn tevens een aantal basisscholen, en een bibliotheek aanwezig. Via de uitvalsweg N260 is de Rijksweg A58 richting Breda en Tilburg vlot te bereiken. Ook bent u vanuit Baarle-Nassau binnen enkele minuten in Turnhout (België) en is de stad Antwerpen op ca. 1 uur rijden bereikbaar. In Baarle-Nassau bevindt zich tevens een goede busverbinding met o.a. bovengenoemde steden.
BOUWKWALITEIT
Deze hoekwoning is gebouwd omstreeks 1960 en heeft een met pannen gedekt zadeldak. De kozijnen zijn uitgevoerd in hout en grotendeels voorzien van dubbele beglazing. De verdiepingsvloeren van dit huis zijn uitgevoerd in hout. De woning wordt verwarmd en voorzien van warm water via een gasgestookte cv-ketel (merk: Ferroli, bouwjaar: 2019). Het ventileren van de woning kan middels natuurlijke ventilatie. Dit huis heeft energielabel E.
INDELING
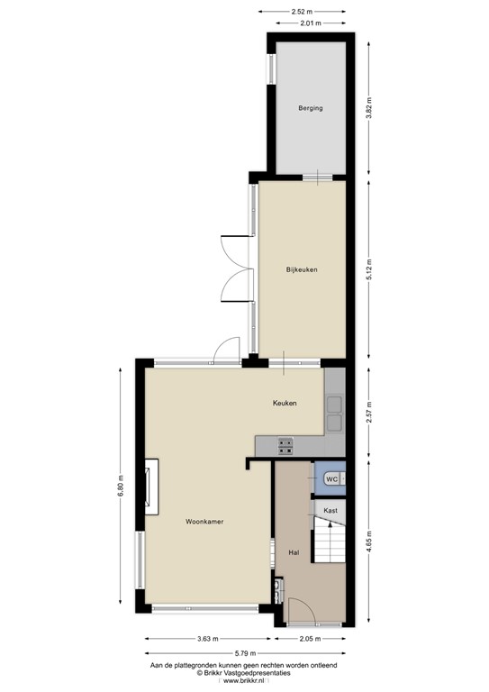
Begane grond
Hal/entree met trapopgang naar de eerste verdieping, meterkast, toiletruimte met toilet, trapkast en toegangsdeur naar woonkamer.
De woonkamer heeft veel lichtinval door de grote raampartijen en beschikt over een schoorsteenkanaal (lange tijd niet gebruikt) en een loopdeur naar de achtertuin.
De L-vormige keuken beschikt over boven- en onderkastjes, dubbele spoelbak, 4-pits gaskookplaat, afzuigkap en koelkast (blijft achter).
Via de keuken is de serre en achtergelegen berging te bereiken (enkelsteens gebouwd).
In de serre bevindt zich het aansluitpunt ten behoeve van wasapparatuur. Ook is hier een loopdeur aanwezig via welke de achtertuin bereikbaar is.
De achtertuin is ca. 22 m diep en ca. 5 m breed en is gesitueerd op het zuidwesten. De achtertuin is fraai aangelegd met plantenborders en meerdere terrassen. Aan de achtergevel van de woning hangt een elektrisch bedienbaar zonnescherm. Daarnaast is er een buitenkraantje aanwezig en ook een achterom.
Eerste verdieping
Overloop met toegang tot alle vertrekken, een opbergkast en de vaste trapopgang naar de tweede verdieping.
Slaapkamer I bevindt zich aan de voorzijde van de woning en is ca. 11m² groot.
De badkamer is eveneens gesitueerd aan de voorzijde van de woning en beschikt over een wastafel en douche. De badkamer is ca. 2m² groot.
Slaapkamer II bevindt zich aan de achterzijde van de woning en is ca. 11m² groot
Slaapkamer III bevindt zich eveneens aan de achterzijde van de woning. Deze slaapkamer heeft een loopdeur naar het platte dak van de serre en is ca. 7m² groot.
Tweede verdieping
Deze verdieping is bereikbaar via een vaste trap.
Op de voorzolder bevindt zich de opstelplaats van de cv-ketel.
Slaapkamer IV beschikt over een dakkapel aan de achterzijde en bergruimte onder de knieschotten. Deze slaapkamer is ca. 16m² groot.
BIJZONDERHEDEN
- Hoekwoning met tal van mogelijkheden om deze naar eigen smaak te verbouwen;
- Grote achtertuin georiënteerd op het zuidwesten;
- Ligging nabij de dorpskern van Baarle-Nassau;
- Verkopers hebben voorkeur voor eigendomsoverdracht bij Bolscher & Smits Netwerk notarissen te Baarle-Nassau.
Ben je benieuwd naar deze woning? Plan dan een bezichtiging via Claudia Makelaardij!
Plattegronden
184484380_titus_brandsmas_bg_first_design_20260416_6d74f3.jpg
184484380-300446968-se-153966994-1776367929135.jpg
184484380_titus_brandsmas_1ste_first_design_20260416_e17cea.jpg
184484380-300447082-se-153966994-1776367929135.jpg
184484380_titus_brandsmas_2de_first_design_20260416_731fea.jpg
184484380-300447292-se-153966994-1776367929135.jpg